Printable Version | Subscribe | Add to Favourites
New Topic New Poll New Reply
Author: Subject: Steering angle for rack
b14wrc

posted on 13/5/11 at 05:51 PM Reply With Quote
Steering angle for rack

Hi all,

Been reading a bit on bump steer and looking at my fairly standard design, do I need to keep the steering rack in line with the red line drawn between the two suspension arms to at least aim to have no bump steer?



Cheers, Rob





20vt powered rear engined locost

View User's Profile E-Mail User View All Posts By User U2U Member
scutter

posted on 13/5/11 at 06:11 PM Reply With Quote
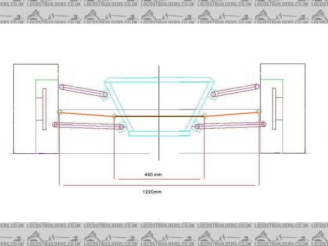
The Rack should try to keep parallel to the lower wishbones and the inner and outer pivots fall along the inner chassis mounts and upright mounts. A pic is a better way of telling you.

ATB Dan.






The less I worked, the more i liked it.

View User's Profile E-Mail User Visit User's Homepage View All Posts By User U2U Member

New Topic New Poll New Reply


go to top






Website design and SEO by Studio Montage

All content © 2001-16 LocostBuilders. Reproduction prohibited
Opinions expressed in public posts are those of the author and do not necessarily represent
the views of other users or any member of the LocostBuilders team.
Running XMB 1.8 Partagium [© 2002 XMB Group] on Apache under CentOS Linux
Founded, built and operated by ChrisW.