Printable Version | Subscribe | Add to Favourites
New Topic New Poll New Reply
Author: Subject: Calling on CAD users (help needed - 5 mins)
iscmatt
Contributor






Posts 1929
Registered 30/3/06
Location York
Member Is Offline

Photo Archive Go!
Building: - BUILT - 2.0 pinto indy, Kent Cam, zzr1100 carbs

posted on 9/4/09 at 06:40 PM Reply With Quote
Calling on CAD users (help needed - 5 mins)

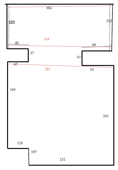
I have been given a plan but i'm away from my computer with CAD. i wondered if someone could draw it up in CAD and give me the area.

Or if your so inclined for a math challenge give it a go!

the units are centimeters.



Cheers guys

Edit to say obviously this sketch is not to scale!!

[Edited on 9/4/09 by iscmatt]






View User's Profile View All Posts By User U2U Member
Guinness

posted on 9/4/09 at 06:51 PM Reply With Quote
I've drawn it up in CAD, but without any diagonals it's had to get it the right shape.

Sorry

Mike






View User's Profile View All Posts By User U2U Member
dinosaurjuice

posted on 9/4/09 at 06:56 PM Reply With Quote
i get 263854 square centimeters. or 26.4 sq meters.

edit: thats not 'square', it will be less than that. but 25 sq meters would be a good estimate.

[Edited on 9/4/09 by dinosaurjuice]






View User's Profile E-Mail User View All Posts By User U2U Member
iscmatt
Contributor






Posts 1929
Registered 30/3/06
Location York
Member Is Offline

Photo Archive Go!
Building: - BUILT - 2.0 pinto indy, Kent Cam, zzr1100 carbs

posted on 9/4/09 at 06:57 PM Reply With Quote
The shape may be sligtly different than indicated on the drawing, did you manage to get an area?






View User's Profile View All Posts By User U2U Member
iscmatt
Contributor






Posts 1929
Registered 30/3/06
Location York
Member Is Offline

Photo Archive Go!
Building: - BUILT - 2.0 pinto indy, Kent Cam, zzr1100 carbs

posted on 9/4/09 at 06:58 PM Reply With Quote
quote:
Originally posted by dinosaurjuice
i get 263854 square centimeters. or 26.4 sq meters.


Cheers for that, guiness did you get anything close to this too?






View User's Profile View All Posts By User U2U Member
Guinness

posted on 9/4/09 at 07:22 PM Reply With Quote
Something similar, but I'm sorry, I just can't get the shape right to get all the walls in the right places!

It's been a long week

Mike






View User's Profile View All Posts By User U2U Member
iscmatt
Contributor






Posts 1929
Registered 30/3/06
Location York
Member Is Offline

Photo Archive Go!
Building: - BUILT - 2.0 pinto indy, Kent Cam, zzr1100 carbs

posted on 9/4/09 at 07:50 PM Reply With Quote
haha, thats cool guinness, thanks for your help guys, much appreciated






View User's Profile View All Posts By User U2U Member
Moorron

posted on 9/4/09 at 08:10 PM Reply With Quote
yeh sorry mate just tried it in solidworks and it cant be forced into that shape, to be honest just looking at the dimensions it cant be right, the two on the lower edge dont add up to the lower red one which it should 'if' all the lines are horizontal and vertical.

Other than that your drawing is good enough in our office lol.





Sorry about my spelling, im an engineer and only work in numbers.

View User's Profile View All Posts By User U2U Member

New Topic New Poll New Reply


go to top






Website design and SEO by Studio Montage

All content © 2001-16 LocostBuilders. Reproduction prohibited
Opinions expressed in public posts are those of the author and do not necessarily represent
the views of other users or any member of the LocostBuilders team.
Running XMB 1.8 Partagium [© 2002 XMB Group] on Apache under CentOS Linux
Founded, built and operated by ChrisW.